Efficient Rotary Drying Unit RTS - 75 m² Heat Exchange

Rotary Drying Unit RTS for Continuous Drying of Various Materials

Manufacturer:KOROLAN LLC
Price:Request Quote

Bulk pricing available

FOB, CIF & EXW terms available

Description

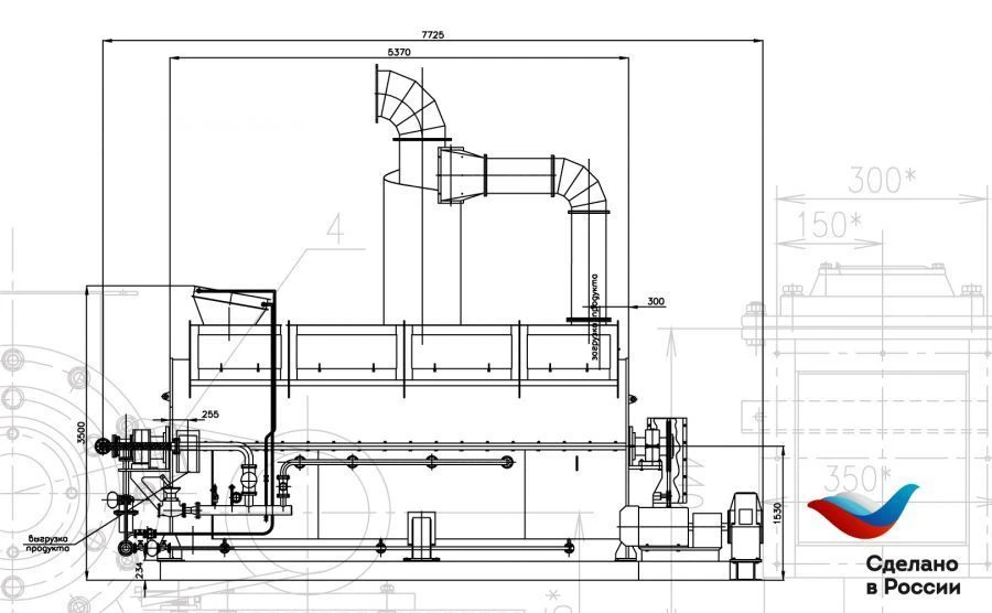
Rotor drying plant type RTS (rotary tube dryer) are designed for drying of various raw materials, pre-pressed on decanter or separator, and other materials in continuous mode to the final moisture content. The design of RTS dryer allows drying of mushy and loose materials, including wastes of fish, meat, brewing, alcohol industry for processing into fodder flour for poultry farms, fish farms and other livestock farms, drying of sunflower meal, etc. Drying unit RTS is designed for drying of protein raw materials of plant and animal origin in a continuous mode and allows drying of various pasty, mushy and loose materials. Due to indirect heating of raw materials, the product obtained after such drying does not have traces of carcinogens and extraneous odours, ash content of the obtained product does not exceed the established norms for use as feed additives.

Specifications

Capacity, kg/h
450
Length
6050 mm
Width
2020 mm
Weight, not more
12800 kg
Height
2250 mm
Vapor pressure
5 MPa
Installed capacity
5 kW
Steam consumption per 1 kg of evaporated moisture
1,4
Heat exchange surface
75
Save Your Time

Share your requirements for a quick response!

Instant response in 15 minutes
Best wholesale prices guaranteed
Direct from manufacturer

Delivery & Payment

Shipping Terms

FOB Novorossiysk, RussiaCIF Available to major ports worldwideEXW Manufacturer's facility, Russia

Delivery Time

Sea freight: 30-60 days (depending on destination) Air freight: 14-21 days (for urgent orders)

Payment Methods

Letter of Credit (L/C)Wire Transfer (T/T)Escrow Services

Similar Products You May Be Interested In

Verified Suppliers

All products are sourced directly from authorized Russian manufacturers

Quality Assurance

Products meet international quality standards with proper certification

Global Shipping

Reliable logistics solutions to deliver products to your location

Secure Payments

Multiple secure payment options to facilitate international transactions

Your callback request has been received. We'll contact you shortly.